Building Plots at Plantation Cottage, Hallmoor Road, Darley Dale, DE4 2HF
For Sale
£325,000
The plots benefit from far reaching views across the surrounding countryside.
For sale by Private Treaty
Description:
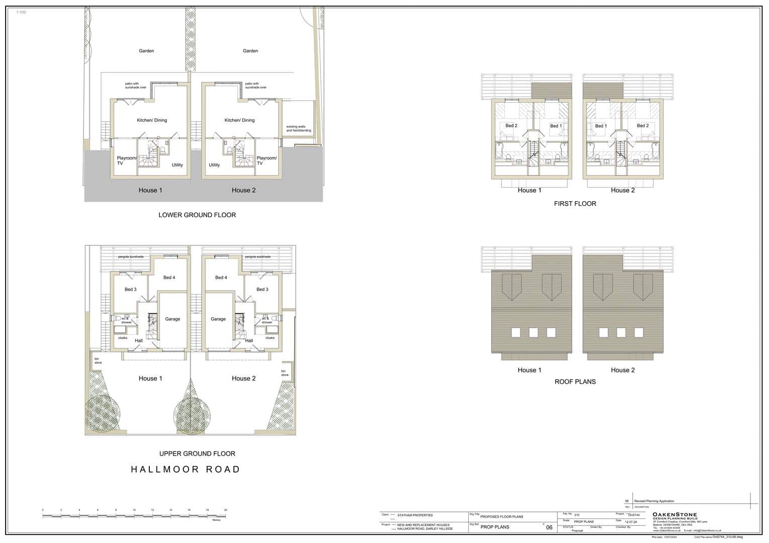
The sale of this plot offers an exciting opportunity to acquire a parcel of land with planning permission to erect two generously-sized four-bedroom dwellinghouses, both dwellings have plans to offer a good-sized garage, private off-road parking for multiple vehicles and gardens with patio areas. The plot extends to a total of approximately 0.23 acres (0.09 hectares) and is gently sloping away from the roadside, providing far reaching rural views across the Derbyshire valley. The plot will suit a small scale developer, with the certainty of planning permission already attained.
Location:
The plot is situated to the north of the village of Darley Dale, boasting an elevated, peaceful position, with good accessibility to a wide range of amenities and neighbouring towns and cities. Nearby towns include; Matlock to the south east (3.4 miles), Bakewell to the northwest (5.8 miles), Wirksworth to the south (7.8 miles), and Chesterfield to the northeast (9.8 miles). The cities of Sheffield and Derby are each within a 25 miles commute respectively.
Directions:
From Matlock town centre head west on the A615 Bakewell Road. At the roundabout take the second exit and continue onto the A6, following the A6 for approx. 2.5 miles. Pass through the village of Darley Dale, and turn right at the crossroads onto Whitworth Road. Follow the road winding up the hill before turning right back onto yourself onto Foggs Hill. Take an immediate right onto Hallmoor Road, the property can be found approx. 0.2 miles on the right hand side, indicated by our ‘For Sale’ board.
Services:
We believe services are within the vicinity, however interested parties should make their own enquiries.
Planning Permission:
The site has planning permission permitted with conditions , granted by Derbyshire Dales District Council with All Matters reserved and listed below;
Erection of 2 x dwellinghouses | Plantation Cottage Hallmoor Road Darley Dale Derbyshire DE4 2HF. Ref: 24/00299/FUL
All copies are available upon request, or via the Local Planning Authority website.
The Existing Site:
The site formerly known as Plantation Cottage, currently comprises a clear site where the cottage was previously situated, together with a existing timber garage and workshop.
Tenure and Possession:
The land is sold freehold, with vacant possession upon completion.
Viewing:
The land may be viewed at any reasonable time when in possession of a copy of these particulars. Please park carefully.
Rights of Way, Wayleaves and Easements:
The property is sold subject to and with the benefit of all rights of way, wayleaves and easements whether or not they are described in these particulars. .
Vendor's Solicitors:
TBC
Local Authority:
Derbyshire Dales District Council, Town Hall, Bank Road, Matlock, Derbyshire DE4 3NN
Method of Sale:
This property is to be sold by private treaty.
Agents Notes
Bagshaws LLP have made every reasonable effort to ensure these details offer an accurate and fair description of the property. The particulars are produced in good faith, for guidance only and do not constitute or form an offer or part of the contract for sale. Bagshaws LLP and their employees are not authorised to give any warranties or representations in relation to the sale and give notice that all plans, measurements, distances, areas and any other details referred to are approximate and based on information available at the time of printing.















