Moorfield Farm, Derbyshire Level, Charlestown, Glossop, SK13 7PR
For Sale
£375,000
The property extends to a total of 0.87 acres (0.34 hectares), excellent for those with small holding interest.
For Sale by Public Auction on Monday 23rd March 2026 at 3.00pm at the Agricultural Business Centre, Bakewell, Derbyshire DE45 1AH
Location
Moorfield Farm is situated on the outskirts of the Peak District National Park being on the edge of Glossop, which offers a wide range of amenities including high street shops, supermarkets, and many services. Glossop is located 1.5 miles from the principal property. Further nearby towns where a wider range of amenities can be found include; New Mills to the south west (7.4 miles), and Chapel– en– le– Frith to the south (9 miles), Hyde to the northwest (10 miles). The cities of Manchester and Sheffield are each within a 25 mile commute respectively. The property boasts pleasant rural outlooks and easy access to major transport links including the M60 and M1 motorway.
Description
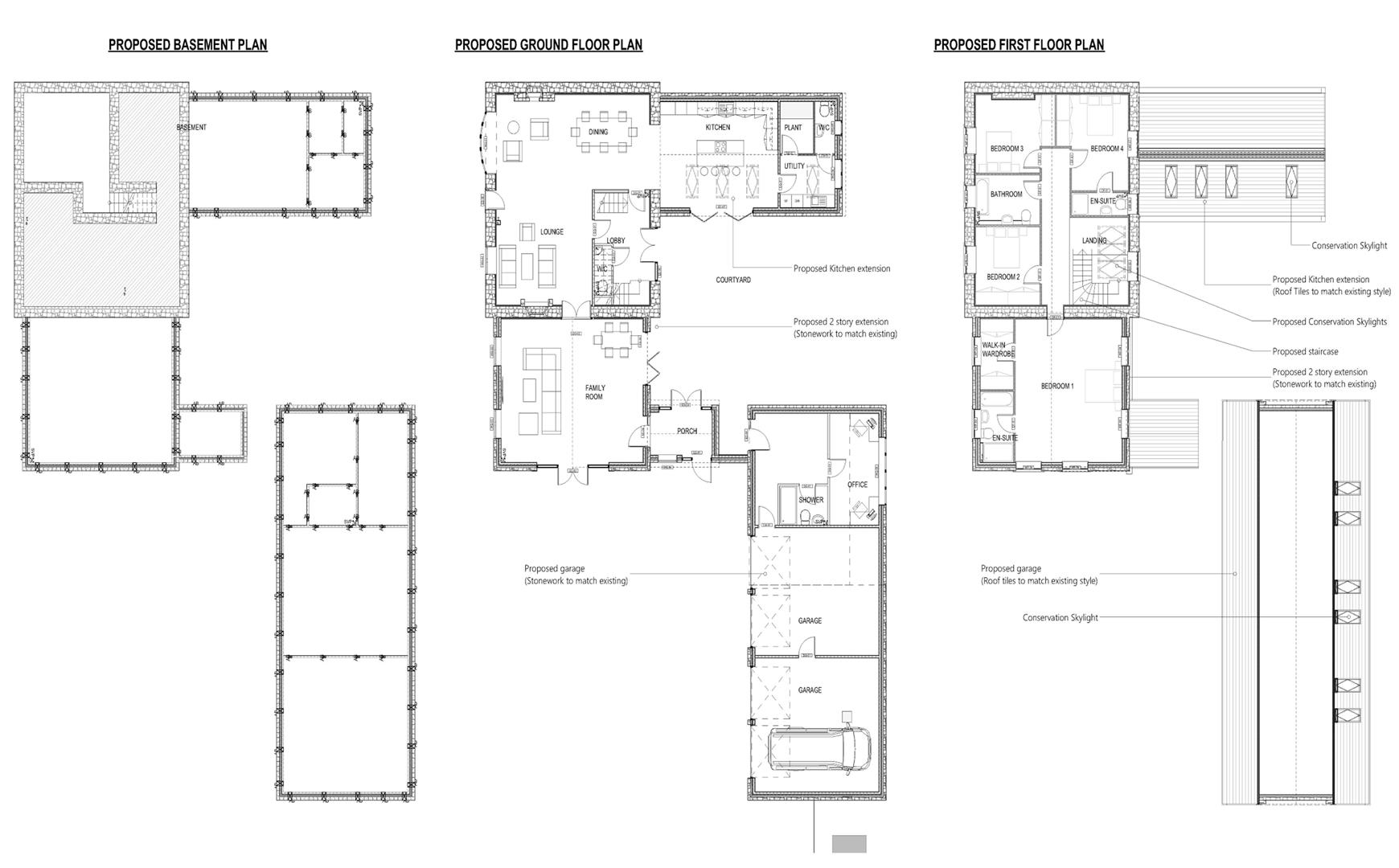
The sale of Moorfield Farm offers a rare opportunity to acquire a property upon a generous plot, extending to approximately 0.85 acres, with much potential in a highly accessible yet semi-rural location with easy access to amenities. Briefly, the property comprises a traditional farmhouse with accommodation across two floors with planning permission for two further extensions. The property has been stripped back with the new internal steel structure in place ready for the new internal layout to be constructed. Externally the property has had roof work completed and the gable end has been water sealed. The proposed plans will allow for multiple reception areas, a large breakfast kitchen, four bedrooms with ensuites and a bathroom. A detached outbuilding will provide a ground floor room, office space and shower room together with a four car garage.
Moorfield delivers a unique offering, suiting those with business, residential, and/or development interests whilst boasting the ‘country lifestyle’ with the convenience of towns nearby and within close proximity to a broader range of amenities and road links.
Directions
From the Main Street of Glossop head northeast toward Sheffield Road (B6105) Turn left onto Sheffield Road and follow it uphill out of the centre. Continue on Sheffield Road for about 0.8 miles. Turn right onto Derbyshire Level , this quiet lane leads directly toward the property which is located on the left hand side dissected by our ‘For Sale’ board.
What3Words location: ///sweetened. Refills.holly
Accommodation
The traditional stone-built farmhouse has been completely stripped back internally to provide a blank canvas for redevelopment, with the original internal layout removed and the steel support structure now defined. The accommodation offers spacious living allowing creation for a family home.
The proposed plans illustrate the potential to transform the farmhouse into a spacious family home with the ground floor containing an open plan living space comprising a lounge area, a dining area, and a second seating space which is open into the breakfast kitchen, utility room, plant room and a WC. There is a further large family room with a living and dining space, and an entrance porch. There is a good sized basement which can be used for storage. To the first floor the proposed layout would include a master bedroom with a walk-in wardrobe and ensuite, three further bedrooms, one with an ensuite and family bathroom. positioned to the side is a further room, office and a shower room together with a four car garage.
Externally, the property offers large lawned garden areas measuring 0.87 acres to the front and sides bounded by hedgerows and dry-stone walls, with mature trees presenting a rural outlook providing far reaching views over adjoining countryside. The private driveway to the side of the farmhouse offers ample off-road parking for multiple vehicles.
There is a static caravan positioned on the site, which will remain on site and included within the sale. The caravan offers useable living space during the remainder of the building works.
Planning Permission
For more information about the planning permission, please visit the Peak District National Park Authority website using Application Number: NP/HPK/0721/0828.
General Information
Services
The property electricity is currently disconnected , with the drainage being a private septic tank.
Fixtures and Fittings
Only those referred to in these particulars are included in the sale.
Tenure and Possession
The property is sold freehold, with vacant possession upon completion.
Sporting Timber and Mineral Rights
The sporting, timber and mineral rights are included in the sale, as far as they exist.
Rights of Way, Wayleaves and Easements
The property is sold subject to and with the benefit of all rights of way, wayleaves and easements whether or not they are described in these particulars.
Local Authority
High Peak Borough Council.
Planning Authority
Peak District National Park Authority.
Viewing
Strictly by appointment only through the selling agents Bagshaws at the Bakewell Office on 01629 812777.
Vendors Solicitor
Lovedays Solicitors, 4 The Quadrant, Buxton, SK17 6AW
EPC
F
Council Tax
G
Broadband Connectivity
Broadband connectivity is not presently available at the property however it is understood that this can be obtained by a reconnection and via mobile and/or satellite. We recommend that prospective purchasers consult the website https://www.ofcom.org.uk to obtain an estimate of the broadband speed for this location.
Mobile Network Coverage
The property is well-situated for mobile signal coverage and is expected to be served by a broad range of providers. Prospective purchasers are encouraged to consult the Ofcom website (https://www.ofcom.org.uk) to obtain an estimate of the signal strength for this specific location.
Money Laundering Regulations 2017
All bidders must provide relevant documentation in order to provide proof of their identity and place of residence before bidding. The documentation collected is for this purpose only and will not be disclosed to any other party. All bidders must register with the auctioneers prior to the auction. If you’re the successful bidder and/or buyer, proof of funds will be required on the day of the auction, please ensure you have them available.
Method of Sale
This property is to be sold by Public Auction on Monday 23rd March 2026 at 3pm at The Agricultural Business Centre, Agricultural Way, Bakewell, Derbyshire DE45 1AH.
Deposits & Completion
The successful purchaser will be required to pay a deposit of 10% of the sale price upon the fall of the hammer. Please note that proof of identification and proof of funds must also be provided to comply with the Money Laundering Regulations 2017. The signing of the Contract of Sale and 10% deposit is legally binding on both parties and completion will occur within 28 days thereafter, unless otherwise stated at the auction. The sale of each lot is subject to a buyer’s fee of £500 plus VAT (£600 inc. of VAT) for all lots sold up to a value of £99,999. For any lots sold at or over £100,000 the buyer’s fee will be £750 plus VAT (£900 inc. of VAT), payable on the fall of the hammer. For on-line buyers only, there is an additional on-line buyer’s premium of £500 plus VAT (£600 inc. of VAT) payable on the fall of the hammer. Please contact the auctioneers for further details.
Fixtures
Conditions of Sale
The Conditions of Sale will be deposited at the office of the Auctioneers seven days prior to the sale and will not be read at the sale. The Auctioneers and Solicitors will be in the sale room fifteen minutes prior to the commencement of the auction to deal with any matter arising from either the conditions of Sale, the Sales Particulars or relating to the auction generally. At the appointed time the sale will commence and thereafter no further queries will be dealt with and the purchaser will be deemed to have full knowledge of the Conditions of Sale and to have satisfied himself fully upon all matters contained or referred to therein, whether or not the purchaser has read them. “The Guide Price is issued as an indication of the auctioneer’s opinion of the likely selling price of the property. Each property offered is subject to a Reserve Price which is agreed between the seller and the auctioneer just prior to the auction and which would ordinarily be within 10% (+/-) of the Guide Price. Both the Guide Price and the Reserve Price can be subject to change up to and including the day of the auction.












































