Colliery House and Pit Cottage, Moorwood Moor, South Wingfield, Alfreton, DE55 7NW
For Sale
£800,000
The property will suit those with smallholder, equestrian and/or development interests.
Colliery House & Pit Cottage
Location:
The property is situated in a pleasant rural position, with far-reaching views across the surrounding Derbyshire countryside, whilst remaining accessible with good road links nearby. The property boasts close-proximity to a wide range of towns; Alfreton to the east (4.6 miles), Matlock to the north west (5.4 miles), Belper to the south (8.6 miles), and Chesterfield to the north (10.6 miles). Each of these towns offers a wide range of amenities including high street shops, doctors surgeries, public houses, primary and secondary schools, supermarkets and fuel stations. The city of Derby locates within commuting distance just 17 miles to the south, whilst Nottingham sits 20 miles southeast, offering train stations to further a field locations. There are many local walks, bridleways, trails and beauty spots in the nearby Peak District National Park, excellent for those who enjoy the outdoors and with equestrian interests.
Description:
The sale of this property presents a great opportunity to acquire a characterful smallholding, in a popular rural location with commutability to both Derby, Nottingham, and further sought-after neighbouring towns. The property briefly offers a traditional three-bedroom dwelling and adjoining one bedroom annex with an outbuilding, each in need of internal modernisation, a self-contained ground floor one-bedroom Cottage, a broad range of traditional and semi-modern agricultural outbuildings, and adjoining grassland paddocks all extending to approximately 11.90 acres (4.82 hectares).
Opportunities such as this rarely become available, with the property providing much potential, lending itself to those with smallholder, hobby farming, equestrian and/or development interests.
Directions:
From Matlock town centre head east on the Alfreton Road, continuing straight for approx. 2.5 miles passing through the village of Tansley. At the crossroads turn right onto High Lane signposted for Lea, and follow the lane to the end to the crossroads. Head straight across onto Wheatcroft Lane, following the lane until the road separates with a triangle of grass, bear left onto Pit Lane. The property can be found approx. 500 yards down Pit Lane on the left hand side, indicated by our ‘For Sale’ board.
What3Words: ///command. Lend.motoring
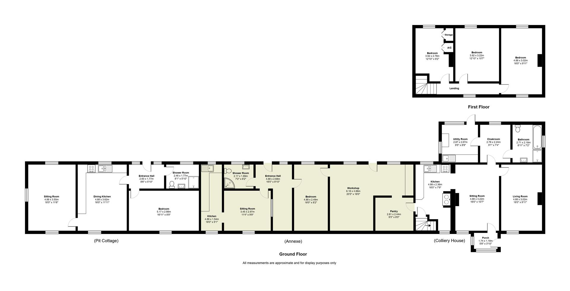
Colliery House
The property offers a traditional two-storey dwelling requiring internal modernisation throughout but with spacious living areas providing opportunity for a purchaser to renovate and update to their taste. Briefly, the ground floor welcomes through a front Porch through into a pleasant Sitting Room with a fireplace. Via a brick archway from the Sitting Room, the Kitchen presents fitted units to two walls and a range, with access to the stairs up to the first floor. A Living Room locates to the right offering a further reception room again hosting a feature fireplace. Situated to the rear of the dwelling, a Utility with an external door, a Cloakroom, and a family bathroom hosting a bath, shower, basin, and w/c. The first floor presents a landing with access to three good-sized bedrooms each overlooking the adjoining paddocks and beyond, one offering built-in storage.
The dwelling boasts much character, with feature fireplaces and exposed beams and brick-work internally adding to the traditional feel of the property. The flexible layout, complemented by the bonus of an annex, allows purchasers to tailor the living spaces to their individual needs—whether accommodating extended/elderly family members or combining both areas to create a generous family home.
Annex
The annex adjoins Colliery House to the west and Pit Cottage to the east, providing accommodation across one level, requiring internal modernisation and renovation. An entrance hall welcomes through to a Sitting Room and separate Kitchen with fitted units. The annex offers a ground floor double bedroom, and a shower room.
Situated between the annex and Colliery House, a workshop offers a great flexible space suitable for a range of activities depending on the purchasers needs, and a small Pantry joins through to the Kitchen of Colliery House. While this area is not currently in use as part of the house, it offers excellent potential to be transformed into additional accommodation, subject to the necessary consents.
Pit Cottage
Adjoining the annex to the west, a self-contained brick-built Cottage offers further accommodation providing potential opportunity for holiday accommodation or a rental property, equally this could be incorporated into the annex and/or Colliery House. The Cottage offers ground floor accommodation requiring a little modernisation, and briefly comprises an entrance hall through to a spacious Dining Kitchen with fitted units, a Sitting Room with a brick-surround fireplace, a generously-sized double bedroom, and a bathroom hosting a shower, w/c, and basin.
Externally
The property boasts ample off-road parking for multiple vehicles and machinery in the yard area to the rear, with private lawned garden areas and patio spaces for those who are horticulturally minded to enjoy.
Outbuildings
The property benefits from a range of agricultural outbuildings, all positioned to the rear of the dwelling within a useful yard area providing ample parking/storage space and access into the paddocks. The buildings comprise a mixture of both traditional and semi-modern in construction, including stone, timber and zinc structures, having all been used for agricultural purposes and general storage. Although slightly aged and requiring areas of repair or replacement, the buildings remain very usable, and their presence holds value should a purchaser wish to redevelop or construct further.
The buildings provide potential conversion opportunities, in particular those that are stone-built, subject to the necessary consent. They also lend themselves to equestrian use, agricultural and/or for those who wish to have at home workshops/businesses (subject to consent).
Land
The property boasts a desirable acreage of 11.90 acres, all down to grassland suitable for grazing and most for mowing, in good heart, and divided into multiple fields parcels. Bounded by mature hedgerows and post and wire fencing, the land offers access from both the yard area and off the roadside, all situated in a sought-after ring fence. The grassland will appeal to those with equestrian and hobby farming interests, with a manageable and well-maintained acreage.
Services:
The property benefits from mains electricity and water, with private drainage.
Fixtures and Fittings:
Only those fixtures and fittings referred to in the sale particulars are included in the purchase price. Bagshaws have not tested any equipment, fixtures, fittings or services and no guarantee is given that they are in good working order.
Tenure and Possession:
The property is sold freehold, with vacant possession granted upon completion.
Mineral, Sporting and Timber Rights:
It is understood that sporting and timber rights are included in the sale as far as they exist. The mineral rights are not included.
Rights of Way, Wayleaves and Easements:
The property is sold subject to, with the benefits of the rights of way, wayleaves and easements that may exist whether or not defined in these particulars.
Council Tax Band
Colliery House—C
Pit Cottage—A
EPC Rating:
Colliery House: G, Colliery House Annexe: F, Pit Cottage: F
Local Authority:
Amber Valley Borough Council, Town Hall, Market Pl, Ripley, Derbyshire DE5 3BT
Viewing:
Strictly by appointment only through the selling agents Bagshaws at the Bakewell Office on 01629 812777.
Method of Sale:
The property will be offered for sale by private treaty.
Broadband Connectivity:
It is understood that the property benefits from a satisfactory broadband service. We recommend that prospective purchasers consult https://www.ofcom.org.uk to obtain an estimated broadband speed for the area.
Mobile Network Coverage:
The property has good mobile network coverage. Prospective purchasers are advised to consult the website of Ofcom (https://www.ofcom.org.uk) to obtain an estimate of the signal strength for this area.
Agents Notes:
Bagshaws LLP have made every reasonable effort to ensure these details offer an accurate and fair description of the property. The particulars are produced in good faith, for guidance only and do not constitute or form an offer or part of the contract for sale. Bagshaws LLP and their employees are not authorised to give any warranties or representations in relation to the sale and give notice that all plans, measurements, distances, areas and any other details referred to are approximate and based on information available at the time of printing.






















































