Sycamore Farm, Main Road, Plumtree, Nottingham, NG12 5NB
Sold STC
£1,750,000
Introduction
Bagshaws are pleased to offer to the market a genuine sale of a first class farm in Nottinghamshire.
Complete farms of this size and quality rarely come to the market and a viewing is essential to appreciate its potential.
Overview
An exceptional and rare opportunity to acquire a model dairy farm set within the Nottinghamshire countryside only approximately 6 miles south of the city of Nottingham.
The farm is situated in the sought after village of Plumtree.
The farm comprises of a well equipped grassland unit with modern, well laid out buildings and an attractive substantial farmhouse.
The land is well accessed by a central track and benefits from good sized fields set in the pleasant countryside of this area.
In all extending to 109 acres or thereabouts.
For Sale as a whole
Location
The property is conveniently located approximately 6 miles south of Nottingham and is within the village of Plumtree which is an attractive settlement with a number of local amenities and good access to major road links.
Directions
From Nottingham proceed on the A52 then A606 south forking right onto Main Road, Plumtree. The farm is the first property on the right.
What3Words: kick. potato.slice
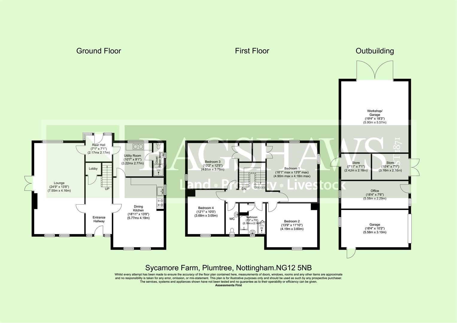
Sycamore Farmhouse
The farmhouse is a modern property built in the early 1990’s affording versatile living and is subject to an Agricultural Occupancy Condition.
The accommodation is of classic layout with the Front Porch leading to an Inner Hall and these lead to the spacious Sitting Room extending the depth of the property. On the alternate side of the property is a Utility Room, Shower Room and Dining Kitchen with a rear Hall providing access from the rear garden and containing the staircase rising to the first floor.
One the first floor is the landing providing access to all first floor rooms. All four bedrooms are well proportioned double bedrooms and are serviced by the family bathroom having bath and separate shower and there is a separate WC.
The house is bright and spacious and will make a comfortable family home.
Buildings
Adjoining the farmhouse is a useful and attractive building containing Garage, Office, Workshop and Store.
1. Hay Barn – with cattle housing to one side with feed barriers along its length.
2. Five Bay Cattle Building
3. A very substantial Cattle Building - with internal divisions.
4. Further Cattle Housing together with dairy, ex-parlour, Farm Office and Cloakroom
5. Grain Store—with load bearing pre-cast metal walls. And roller front door.
There is a slurry storage facility to the rear of the buildings
All the buildings are in good order and sensibly arranged to provide considerable areas of undercover space.
They are conveniently situated near to the farmhouse ensuring ease of access and security.
The Farmland
The field parcels are well configurated and are suitably sized for either livestock or arable farming.
Currently all the farm is laid to pasture although apart from one field it is all level and easily accessed for cultivations. The farm was established as a dairy unit but it is adaptable to other farming enterprises.
The land lies relatively level at between 46—52 metres above sea level, being classified as mainly Grade 2 Under the MAFF Agricultural Land Classification Scheme.
The soils are a sandy clay loam.
The fields are accessed via a right of way along a central track which and the north field of 7.62 acres is accessed via an underpass of the redundant railway.
There are two small paddocks near the farmhouse, which together with its immediate garden form an attractive focal point for the farm. There is an excellent access from the highway into the farm yard and house with a large concrete turning area both in front of and along side the main buildings.
General Information
Tenure and Possession
The property is being sold freehold with vacant possession upon completion.
Rights of Way, Wayleaves and Easements
The property is sold subject to and with the benefit of all rights of way, easements and wayleaves whether or not defined in these particulars.
There are footpaths crossing some of the fields.
Viewings
Strictly by appointment through the Ashbourne Office of Bagshaws.
EPC
EPC - C
Council Tax Band - D
Local Authority
Rushcliffe Borough Council, West Bridgford, NG2 7YG
Method of Sale
The property is for sale by Private Treaty.
Services
Mains gas, electricity and water are connected. Private drainage via septic tank. Gas central heating.
Electrical Sub-Station
Included within the sale is the site, subject to transfer, is the site of an electricity sub-station which is leased to National Grid for £200 per annum.
Mines and MInerals
The vendors reserves the right of mines and minerals but without the right for surface entry.
Development Potential
There are potentially a number of areas of the farm that may be suitable for residential development at some point in the future and the farm is being sold with no overage provision in the event of any future development, except for the area shaded green on the attached plan of the land. This is subject to an uplift of 20% over 50 years.
It is understand from the vendor that this area has previously been identified as a possible opportunity for battery storage.
Fixtures and Fittings
Only those fixtures and fittings referred to in the sale particulars are included in the purchase price. Bagshaws have not tested any equipment, fixtures, fittings or services and no guarantee is given that they are in good working order.
Money Laundering Regulations
Due to recent changes in legislation, all buyers must provide relevant documentation in order to provide proof of their identity and place of residence. The documentation collected is for this purpose only and will not be disclosed to any other party. This documentation must be provided at the time the offer is submitted.
Broadband Connectivity
Broadband connectivity is not presently available at the property however it is understood that this can be obtained via mobile and/or satellite. We recommend that prospective purchasers consult the website https://www.ofcom.org.uk to obtain an estimate of the broadband speed for this location.
Mobile Network Coverage
The property is well-situated for mobile signal coverage and is expected to be served by a broad range of providers. Prospective purchasers are encouraged to consult the Ofcom website (https://www.ofcom.org.uk) to obtain an estimate of the signal strength for this specific location.
Agents Notes
Bagshaws LLP have made every reasonable effort to ensure these details offer an accurate and fair description of the property. The particulars are produced in good faith, for guidance only and do not constitute or form an offer or part of the contract for sale. Bagshaws LLP and their employees are not authorised to give any warranties or representations in relation to the sale and give notice that all plans, measurements, distances, areas and any other details referred to are approximate and based on information available at the time of printing.


































