Windermere, Bath Lane, Ashover, Chesterfield, S45 0LG
For Sale
£695,000
For sale by Public Auction at 3pm on 17th November 2025 at the Agricultural Business Centre, Bakewell, DE45 1AH
Location
The property is situated in a secluded rural position, yet boasting great accessibility to nearby towns, just on the edge of the Peak District National Park. With good transport links, the property is within close proximity to a wide range of amenities including high street shops, doctors surgeries, public houses, primary and secondary schools, supermarkets and fuel stations; Matlock (4.1 miles), Chesterfield (5.3 miles), and Bakewell (10.3 miles). The cities of Sheffield, Derby and Nottingham are within an hours commute, each offering train stations to further a field locations. There are many nearby local walks, bridleways, trails and beauty spots in the Peak District National Park, excellent for those who enjoy the outdoors and with equestrian interests.
Dwelling
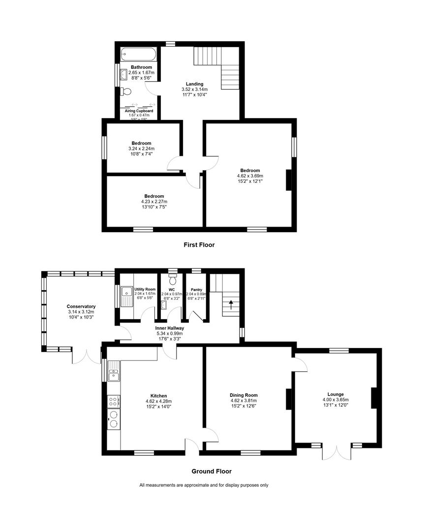
The sale of Windermere presents a unique opportunity to acquire a traditional detached dwelling in a highly sought-after location, with spacious accommodation across two floors, perfectly suited for family living. Internally, the dwelling would benefit from some sympathetic modernising and updating but allows a purchaser to renovate to their own personal taste.
The ground floor offers entrance into a generously-sized dining kitchen, through to a dining room, with further access into a lounge with external patio doors. An inner hallway presents access to a useful utility room, a pantry offering storage, a cloakroom with w.c, and a pleasant conservatory. Climbing to the first floor, the dwelling presents three good-sized double bedrooms, a wide landing lending itself to a study or reading area, and a family bathroom hosting a bath, basin, w.c, and an airing cupboard.
Externally
The property is pleasantly set-back away from the roadside, with a gated driveway giving entrance into a spacious yard area providing much parking for multiple vehicles with good access into the garage and outbuildings. Impressive lawned gardens and patio areas wrap around the dwelling, perfect for those who are green fingered, including planted borders, a rockery, and separate orchard and attractive pond area. A perimeter of mature trees offers a degree of privacy, with pleasant countryside outlooks.
Outbuildings and Land
Within the yard area, the property offers a range of stone-built outbuildings with huge potential for conversion whether that be for holiday or annexed accommodation to provide an ancillary living space, subject to all the necessary planning consents. Alternatively, the outbuildings provide opportunity to house small livestock, horses and/or be utilised as a workshop/general storage etc. A useful double garage presents a further outbuilding offering undercover parking and/or storage, with a small workshop to the side.
The land at the property comprises a paddock laying flat, locating to the west of the dwelling, suitable for grazing of small livestock and/or horses and mowing. The paddock is all down to grassland in good heart, bounded by dry stone walling and hedgerow, and of manageable acreage suiting those with hobby farming/equestrian interests, and who are seeking the amenity aspects of life. Conveniently, the land benefits from roadside access and access from the driveway.
Directions
From the village of Ashover, head northwest on Ashover Road B6036 into the village of Kelstedge. At the junction, turn right onto Matlock Road A632 signposted for Chesterfield. Follow the road for approximately 0.5 miles, before turning right onto Hut Lane. Follow the lane to the end, turning left at the junction onto Bath Lane, the property can be found approx. 400 yards along Bath Lane on the left hand side, and indicated by our ‘For Sale’ board.
What3Words: ///provoking. Provider.available
Services
The property benefits from mains electricity, with a private water supply and drainage.
Tenure and Possession:
The land is sold freehold with vacant possession upon completion.
Viewing
Strictly by appointment through the Bakewell Office of Bagshaws as sole agents on 01629 812777 or email Bakewell@bagshaws.com.
Rights of Way, Wayleaves and Easements:
The property is sold subject to and with the benefit of all rights of way, wayleaves and easements whether or not they are described in these particulars.
Structural Condition:
We believe the property has some structural movement and are unaware whether this is historic or recent. No surveys have been undertaken, and buyers should make their own enquiries and satisfy themselves with regards to this.
Fixtures and Fittings:
Only those fixtures and fittings referred to in the sale particulars are included in the purchase price. Bagshaws have not tested any equipment, fixtures, fittings or services and no guarantee is given that they are in good working order.
Council Tax Band
E
EPC
TBC
Method of Sale:
The property is offered by Public Auction at 3.00pm on Monday 17th November 2025 at The Agricultural Business Centre, Bakewell, Derbyshire DE45 1AH.
Local Authority
North East Derbyshire District Council, 2013 Mill Ln, Chesterfield, Derbyshire S42 6NG
Sporting, Timber and Mineral Rights:
The sporting and timber rights are included insofar as they exist. Mineral rights are not included.
Vendors Solicitors
Kieran Clarke Green Solicitors, 36 Clarence Rd, Chesterfield, Derbyshire S40 1XB
Money Laundering Regulations 2017
All bidders must provide relevant documentation in order to provide proof of their identity and place of residence before bidding. The documentation collected is for this purpose only and will not be disclosed to any other party. All bidders must register with the auctioneers prior to the auction.
Deposits & Completion
The successful purchaser will be required to pay a deposit of 10% of the sale price upon the fall of the hammer. Please note that proof of identification must also be provided to comply with the Money Laundering Regulations 2017. The signing of the Contract of Sale and 10% deposit is legally binding on both parties and completion will occur within 28 days thereafter, unless otherwise stated at the auction. The sale of each lot is subject to a buyer’s fee of £500 plus VAT (£600 inc. of VAT) for all lots sold up to a value of £99,999. For any lots sold at or over £100,000 the buyer’s fee will be £750 plus VAT (£900 inc. of VAT), payable on the fall of the hammer. For on-line buyers only, there is an additional on-line buyer’s premium of £500 plus VAT (£600 inc. of VAT) payable on the fall of the hammer. Please contact the auctioneers for further details.
Conditions of Sale
The Conditions of Sale will be deposited at the office of the Auctioneers seven days prior to the sale and will not be read at the sale. The Auctioneers and Solicitors will be in the sale room fifteen minutes prior to the commencement of the auction to deal with any matter arising from either the conditions of Sale, the Sales Particulars or relating to the auction generally. At the appointed time the sale will commence and thereafter no further queries will be dealt with and the purchaser will be deemed to have full knowledge of the Conditions of Sale and to have satisfied himself fully upon all matters contained or referred to therein, whether or not the purchaser has read them. “The Guide Price is issued as an indication of the auctioneer’s opinion of the likely selling price of the property. Each property offered is subject to a Reserve Price which is agreed between the seller and the auctioneer just prior to the auction and which would ordinarily be within 10% (+/-) of the Guide Price. Both the Guide Price and the Reserve Price can be subject to change up to and including the day of the auction.
Agents Notes
Bagshaws LLP have made every reasonable effort to ensure these details offer an accurate and fair description of the property. The particulars are produced in good faith, for guidance only and do not constitute or form an offer or part of the contract for sale. Bagshaws LLP and their employees are not authorised to give any warranties or representations in relation to the sale and give notice that all plans, measurements, distances, areas and any other details referred to are approximate and based on information available at the time of printing.



























































